


Carel UltraPower-Modul 230V 20A mit Fehlerstromschutzschalter und 3HP-Relais WM00P0003N - Carel UltraPower-Modul mit Fehlerstromschutzschalter 1ph und Zusatzrelais 3HP
Artikelnummer: 5080124Leverancierscode: WM00P0003N
Artikel eenheid conversie: 1 Stuk(s)Douanetariefnummer: 90328900​Verpakkingsgrote : 305x130x130​Gewicht inclusief verpakking: 1,450 kg​
WM00P0003N - Carel UltraPower-Modul mit Fehlerstromschutzschalter 1ph und Zusatzrelais 3HP
Log in om de prijs te zien
Beschrijving
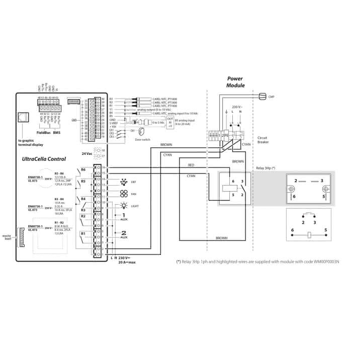
Schutz- und Leistungsmodule, IP65, erhältlich in der Version für modulare Verbindung mit Kühlraum-Schaltschrank. Einphasige Version mit Schutz durch Fehlerstromschutzschalter und Lastmanagement bis 3HP. Dreiphasige Version mit Schutz durch vierpoligen Schutzschalter und Abtauregelung bis 11 kW und Verdampferlüfter bis 4 kW.
Specificaties
IP-certificering
65
Maße Breite
128 mm
Maße Höhe
290 mm
Maße Tiefe
110 mm
Daten und Abbildungen ohne Gewähr
