


Carel -Power Module o. Relais WM00P000NN WM00P000NN - Carel UltraPower-Modul mit Fehlerstromschutzschalter 1ph
Artikelnummer: 5080126Leverancierscode: WM00P000NN
Artikel eenheid conversie: 1 Stuk(s)Douanetariefnummer: 90328900​Verpakkingsgrote : 300x140x130​Gewicht inclusief verpakking: 1,250 kg​
WM00P000NN - Carel UltraPower-Modul mit Fehlerstromschutzschalter 1ph
Log in om de prijs te zien
Beschrijving
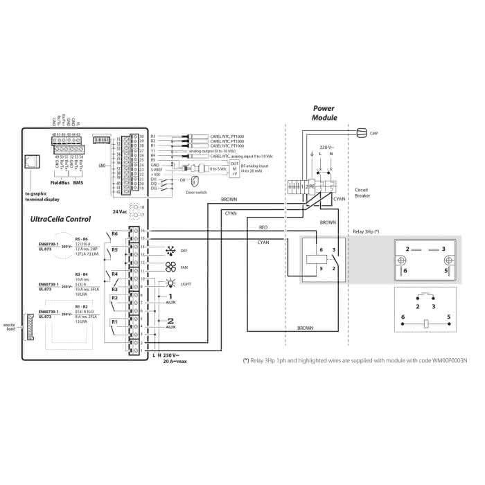
Schutz- und Leistungsmodule, IP65, erhältlich in der Version für modulare Verbindung mit Kühlraum-Schaltschrank. Einphasige Version mit Schutz durch Fehlerstromschutzschalter und Lastmanagement bis 3HP. Dreiphasige Version mit Schutz durch vierpoligen Schutzschalter und Abtauregelung bis 11 kW und Verdampferlüfter bis 4 kW.
Specificaties
Maße Breite
128 mm
Maße Höhe
290 mm
Maße Tiefe
110 mm
Daten und Abbildungen ohne Gewähr
